中古マンション
「利回り」は、当該不動産の1年間の予定賃料収入の不動産取得対価に対する割合であり、公租公課その他当該物件を維持するために必要な費用の控除前のものです。
また、予定賃料収入が確実に得られる事を保証するものではありません。

「パレステージ江北」のここがイチオシ。専用アンテナを用意する必要なく、BS衛星放送を楽しめます。快適な生活が送れる、1LDKの間取りが魅力の物件です。日常生活で利用頻度の高い水回りだからこそ、使い勝手のいいシステムキッチンを選んでみませんか。不動産のことでお悩みでしたら、ダンデライオン 王子店へお気軽にお問い合わせ下さい。ご要望やご質問などあれば承ります。

※地図上の物件位置は近隣に物件が所在することを表すものであり、実際の物件所在地とは異なる場合がございます。
0120-485-494
営業時間:10:00~19:00 / 定休日:水曜日
| 所在地 | 東京都足立区江北4丁目 11-6 | ||
|---|---|---|---|
| 交通 | 日暮里舎人ライナー 「江北」駅 徒歩8分 | ||
| 価格 | 2,450万円 | 表面利回り | 4.84% |
| 想定年間収入 | 118.58万円 (9.8817万円/月) | 管理費 | 6,800円 |
| 修繕積立金 | 7,360円 | 築年月(築年数) | 2016年 9月(築9年) |
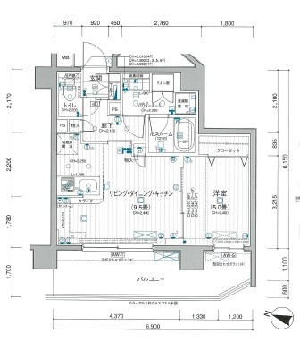
| 所在階/階数 | 6階 / 7階建 | 専有面積 | 36.65㎡ |
| バルコニー面積 | 11.37㎡ | 主要採光面 | 西 |
| 間取り |
1LDK
LDK 9.5帖 / 洋室 5.0帖 / |
||
| 建物構造 | 鉄筋コンクリート(RC) | 用途地域 | |
| 土地権利 | 所有権 | 国土法届出 | 不要 |
| 現況 | 賃貸中 | 引渡し | 相談 |
| 土地の権利形態 | |||
| 管理 | 管理形態:管理会社に全部委託、 管理員の勤務形態:日勤、 管理会社:日神管財株式会社 | ||
| 駐車場 | |||
| 設備条件 | 公共下水 / 公営水道 / 都市ガス / ペット相談 / ペット飼育可 / フローリング / バルコニー / ガスコンロ / コンロ2口以上 / システムキッチン / バス・トイレ別 / 浴室乾燥機 / 温水洗浄便座 / CS / BS / オートロック | ||
| その他条件 | |||
| 備考 | 家から450mのところには東京女子医大足立医療センターがあります。瀧野川信用金庫足立支店まで295mです。駅から徒歩8分の物件です。足立区での生活なら、日暮里舎人ライナー江北周辺が環境も整っており、お勧めです。0120-485-494でダンデライオン 王子店に住まい探しについてお問い合わせ下さい。 | ||
| 取引態様 | 専属専任媒介 | 物件番号 | 98175029 |
| 情報公開日 | 2026年2月2日 | 次回更新予定日 | 2026年2月16日 |
| 取引条件の有効期限 | 2026年2月16日 | ||
| 取扱い会社 |
有限会社ダンデライオン 王子店 〒114-0022 東京都北区王子本町1丁目1-21 東京都知事(5)第85494号 |
||
0120-485-494
営業時間:10:00~19:00 / 定休日:水曜日
| 所在地 | 物件の住所を表示。(詳細住所は表示していない場合もある) | ||
|---|---|---|---|
| 交通 | 物件(部屋)の沿線駅・バス停を表示。(複数駅・バス停の利用が可能な場合は最大3件まで) | ||
| 間取り/詳細 | 数字は居室数を表示。LDKはそれぞれ「リビング」「ダイニング」「キッチン」、S(納戸)とは「納戸」「サービスルーム」「マルチルーム」「フリールーム」など建築基準法第28条に適合していないため、居室と認められない納戸その他の部分を表す。 | ||
| 価格 | 販売されている住戸の価格を表示。仲介手数料は含まない。 | ||
| 管理費 | 共同住宅の設備その他共用部分の維持および管理をするために必要な費用を表示。 | ||
| 修繕積立金 | 共用部分の修繕のために積立てる金額を表示。 | ||

【外観】落ち着いたトーンで、住宅街に自然に溶け込みながらも上品な印象を与えます 鉄筋コンクリート造地上7階建て