中古マンション
「利回り」は、当該不動産の1年間の予定賃料収入の不動産取得対価に対する割合であり、公租公課その他当該物件を維持するために必要な費用の控除前のものです。
また、予定賃料収入が確実に得られる事を保証するものではありません。

TKハイツ王子:京浜東北・根岸線王子駅駅にも近くて便利。2駅利用できる場所にあるので利便性が高いです。手洗いや歯磨きに必要な洗面台も備え付けられています。スーパーも近いので、お買い物も楽々ですね。京浜東北・根岸線王子駅近くにて住まい探しを始めるなら、info-era@dande.jpからいつでもダンデライオン 王子店までご質問下さい。素敵なお住まいを手に入れるなら、是非ご利用下さい。

※地図上の物件位置は近隣に物件が所在することを表すものであり、実際の物件所在地とは異なる場合がございます。
0120-485-494
営業時間:10:00~19:00 / 定休日:水曜日
| 所在地 | 東京都北区王子本町1丁目 1-24 | ||
|---|---|---|---|
| 交通 |
京浜東北線 「王子」駅
徒歩3分 都電荒川線 「王子駅前」駅 徒歩4分 南北線 「王子」駅 徒歩3分 |
||
| 価格 | 2,980万円 | 管理費 | 10,600円 |
| 修繕積立金 | 3,970円 | 修繕積立基金 | |
| 所在階/階数 | 5階 / 6階建 | 築年月(築年数) | 1983年 7月(築42年) |
| 専有面積 | 43.40㎡ | バルコニー面積 | 3.07㎡ |
| 建物構造 | 鉄筋コンクリート(RC) | 主要採光面 | 北東 |
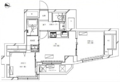
| 間取り |
2DK
DK 6.8帖 / 洋室 5.0帖 / 洋室 4.1帖 / |
||
| リフォーム | 内装リフォーム:2026年1月完成予定 | ||
| 引渡し | 相談 | ||
| 管理 | 管理形態:自主管理、 管理員の勤務形態:巡回、 管理会社:自主管理 | ||
| 土地権利 | 所有権 | 用途地域 | 第一種中高層住居専用地域 |
| 土地の権利形態 | |||
| 駐車場 | 無、物件からの距離:150m | ||
| 設備条件 | エレベーター / 耐震構造 / 外観タイル張り / リフォーム / 室内洗濯機置場 / ベランダ / バルコニー / 電気有 / 照明器具付き / 駐輪場 / システムキッチン / バス・トイレ別 / 浴室乾燥機 / 温水洗浄便座 / 洗面台 / エアコン / ウォークインクロゼット | ||
| その他条件 | |||
| 備考 | こだわりで選びたい方におすすめ。北区エリアで住まいをお探しなら「TKハイツ王子」。駐輪場があるのでバイクも自転車も安心して停めることができます。不自由を感じない新築マンションはこちらです。経済面でも嬉しい、2,980万円の魅力的な物件です。京浜東北・根岸線王子駅近郊にある不動産のことなら、ダンデライオン 王子店にお任せ下さい。地域に詳しい当社スタッフがサポート致します。 | ||
| 周辺の学校 | |||
| 取引態様 | 仲介 | 物件番号 | 100589314 |
| 情報公開日 | 2026年1月29日 | 次回更新予定日 | 2026年2月12日 |
| 取引条件の有効期限 | 2026年2月12日 | ||
| 取扱い会社 |
有限会社ダンデライオン 王子店 〒114-0022 東京都北区王子本町1丁目1-21 東京都知事(5)第85494号 |
||
0120-485-494
営業時間:10:00~19:00 / 定休日:水曜日
| 所在地 | 物件の住所を表示。(詳細住所は表示していない場合もある) | ||
|---|---|---|---|
| 交通 | 物件(部屋)の沿線駅・バス停を表示。(複数駅・バス停の利用が可能な場合は最大3件まで) | ||
| 間取り/詳細 | 数字は居室数を表示。LDKはそれぞれ「リビング」「ダイニング」「キッチン」、S(納戸)とは「納戸」「サービスルーム」「マルチルーム」「フリールーム」など建築基準法第28条に適合していないため、居室と認められない納戸その他の部分を表す。 | ||
| 価格 | 販売されている住戸の価格を表示。仲介手数料は含まない。 | ||
| 管理費 | 共同住宅の設備その他共用部分の維持および管理をするために必要な費用を表示。 | ||
| 修繕積立金 | 共用部分の修繕のために積立てる金額を表示。 | ||

中古マンション
| 価格 | 3,080 万円 | ||
|---|---|---|---|
| 間取り | 2DK | 築年月(築年数) | 1991年 10月 (築34年) |
| 専有面積 | 40.89㎡ | 階数 | 4階建 |
| 住所 | 東京都北区滝野川7丁目43-1 | ||
| 交通 |
埼京線「板橋」駅 徒歩6分 都営三田線「西巣鴨」駅 徒歩7分 山手線「大塚」駅 徒歩22分 |
||
【外観】落ち着いた佇まいのマンション