中古マンション
「利回り」は、当該不動産の1年間の予定賃料収入の不動産取得対価に対する割合であり、公租公課その他当該物件を維持するために必要な費用の控除前のものです。
また、予定賃料収入が確実に得られる事を保証するものではありません。

【管理費・修繕費その他費用調査中】近くにはセブンイレブン 大田区役所前店(徒歩2分)がありちょっとした買い物に便利です。オートロック設備は防犯性能が高く安心して生活ができます。京浜東北線蒲田周辺からお住まいをお探し下さい。ゆとりのある住まいをお探しの際はinfo-era@dande.jpより、ダンデライオン 王子店までご連絡をお待ちしております。

※地図上の物件位置は近隣に物件が所在することを表すものであり、実際の物件所在地とは異なる場合がございます。
0120-485-494
営業時間:10:00~19:00 / 定休日:水曜日
| 所在地 | 東京都大田区蒲田5丁目 40-11 | ||
|---|---|---|---|
| 交通 |
京浜東北線 「蒲田」駅
徒歩3分 京急本線 「京急蒲田」駅 徒歩11分 東急池上線 「蒲田」駅 徒歩7分 |
||
| 価格 | 4,270万円 | 表面利回り | 3.79% |
| 想定年間収入 | 161.833万円 (13.4861万円/月) | 管理費 | |
| 修繕積立金 | 築年月(築年数) | 2019年 9月(築6年) | |
| 所在階/階数 | 10階 / 15階建 | 専有面積 | 30.32㎡ |
| バルコニー面積 | 2.53㎡ | 主要採光面 | 南 |
| 間取り |
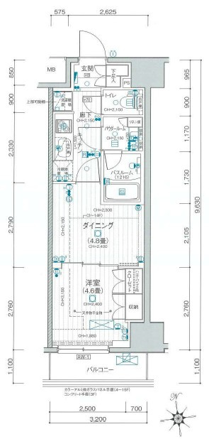
1DK
K / D 4.5帖 / 洋室 4.7帖 / |
||
| 建物構造 | 鉄筋コンクリート(RC) | 用途地域 | 商業地域 |
| 土地権利 | 所有権 | 国土法届出 | 不要 |
| 現況 | 賃貸中 | 引渡し | 相談 |
| 土地の権利形態 | |||
| 管理 | 管理形態:管理会社に全部委託、 管理員の勤務形態:日勤、 管理組合:有、 管理会社:日神管財株式会社 | ||
| 駐車場 | |||
| 設備条件 | 公共下水 / 公営水道 / 都市ガス / エレベーター / 耐震構造 / 24時間緊急通報システム / ペット相談 / ペット飼育可 / 女性向け / 新婚さん向け / 室内洗濯機置場 / フローリング / ベランダ / バルコニー / 24時間換気システム / 電気有 / IHクッキングヒーター / コンロ2口以上 / システムキッチン / バス・トイレ別 / 浴室乾燥機 / 温水洗浄便座 / 洗面台 / エアコン / CS / BS / オートロック / TVモニタ付インターホン / 複層ガラス / ディンプルキー | ||
| その他条件 | |||
| 備考 | 【管理費・修繕費その他費用調査中】騒音トラブルを軽減してくれる、遮音性の高い二重天井です。日常生活で利用頻度の高い水回りだからこそ、使い勝手のいいシステムキッチンを選んでみませんか。IH調理器を使用したキッチンです。来訪者の顔が見えるTVインターホン付き。京浜東北線蒲田近辺で住まいに関する情報をお求めなら、0120-485-494までご連絡下さい。ダンデライオン 王子店がしっかりとご案内します。 | ||
| 取引態様 | 専属専任媒介 | 物件番号 | 102060546 |
| 情報公開日 | 2026年4月16日 | 次回更新予定日 | 2026年4月25日 |
| 取引条件の有効期限 | 2026年4月25日 | ||
| 取扱い会社 |
有限会社ダンデライオン 王子店 〒114-0022 東京都北区王子本町1丁目1-21 東京都知事(5)第85494号 |
||
0120-485-494
営業時間:10:00~19:00 / 定休日:水曜日
| 所在地 | 物件の住所を表示。(詳細住所は表示していない場合もある) | ||
|---|---|---|---|
| 交通 | 物件(部屋)の沿線駅・バス停を表示。(複数駅・バス停の利用が可能な場合は最大3件まで) | ||
| 間取り/詳細 | 数字は居室数を表示。LDKはそれぞれ「リビング」「ダイニング」「キッチン」、S(納戸)とは「納戸」「サービスルーム」「マルチルーム」「フリールーム」など建築基準法第28条に適合していないため、居室と認められない納戸その他の部分を表す。 | ||
| 価格 | 販売されている住戸の価格を表示。仲介手数料は含まない。 | ||
| 管理費 | 共同住宅の設備その他共用部分の維持および管理をするために必要な費用を表示。 | ||
| 修繕積立金 | 共用部分の修繕のために積立てる金額を表示。 | ||

【外観】高くそびえ建つシャープな外観 お問い合わせは【LIXIL不動産ショップ ダンデライオン王子店】までお待ちしております♪